Do prezentowania pracy klientom, przekazywania projektu i szczegółów planistom, wykonawcom, komukolwiek innemu - nadal używamy rysunków 2D. Najbardziej wydajnym sposobem na przekształcenie modeli SketchUp w diagramy, rysunki, prezentacje lub tylko skalowane wydruki jest LayOut.
SketchUp Pro i LayOut zostały zaprojektowane wspólnie, aby pomóc w przygotowaniu fenomenalnych rysunków. Dlaczego więc nie zrobić następnego kroku i nauczyć się LayOut? Myślimy, że powinieneś. Jeżeli nie miałeś jeszcze do czynienia z programem zachęcamy do pobrania SketchUp Pro 2019, aby wypróbować LayOut. Ale jeśli już pracujesz w LayOut, zapraszamy do lektury aby nauczyć się opracowania jeszcze lepszych rysunków.

Tworzenie skalowanych rysunków
Model SketchUp nie jest jedyną rzeczą, którą można skalować w LayOut. Narzędzia do rysowania w skali umożliwiają naszkicowanie detalu od podstaw lub dodanie skalowanych linii do widoku modelu SketchUp - bezpośrednio w LayOut. Już dawno minęły czasy, kiedy trzeba było wrócić do programu SketchUp, aby utworzyć rysunek 2D lub wyszukiwać linii przerywanej, aby pokazać podwieszaną szafkę. Po utworzeniu skalowanego rysunku możesz dowolnie ustawić jego skalę. Wprowadzone przez Ciebie zmiany dostosują rozmiar w razie potrzeby. Jak można się spodziewać, skalowane rysunki są w pełni wspierane przez narzędzia do wymiarowania.
Dla wszystkich metod rysowania…
Optymalizacja pracy z rysunkiem jest tym co lubimy robić. Zestaw narzędzi LayOut ułatwia rysowanie detali. Oto trzy z naszych ulubionych rozwiązań:
Użyj narzędzia Łuk z 2 punktów, aby znaleźć styczne. Klikając dwukrotnie można go także użyć do tworzenia fazowań i zaokrągleń o określonym promieniu.

W trakcie edycji linii można wybrać wiele segmentów i punktów podczas dodawania i odejmowania elementów do zaznaczenia.

Nie chcesz aby LayOut podczas rysowania automatycznie przyciągał nowe segmenty linii z istniejącymi obiektami? W menu pod prawym przyciskiem myszy możesz wyłączyć tę funkcję.
Grupowanie i blokowanie elementów
Dla wsparcia skalowanych rysunków, edytowanie zgrupowanych elementów w programie LayOut działa tak samo, jak w programie SketchUp. Oznacza to, że łatwiej jest modyfikować zgrupowane elementy, a tym samym łatwiej jest porządkować dokumenty. Bonus: możesz również kontrolować widoczność „reszty dokumentu” podczas edycji grup.
Podobnie jak w przypadku edycji grupowej, blokowanie elementów ma fundamentalne znaczenie dla liczby osób organizujących i poruszających się po projektach (zarówno modelach, jak i dokumentach). Oprócz blokowania warstw można łatwo zablokować poszczególne elementy LayOut, aby ograniczyć przypadkowe zaznaczenie - tak jak w programie SketchUp.
Rysuj z dokładnością do .000001
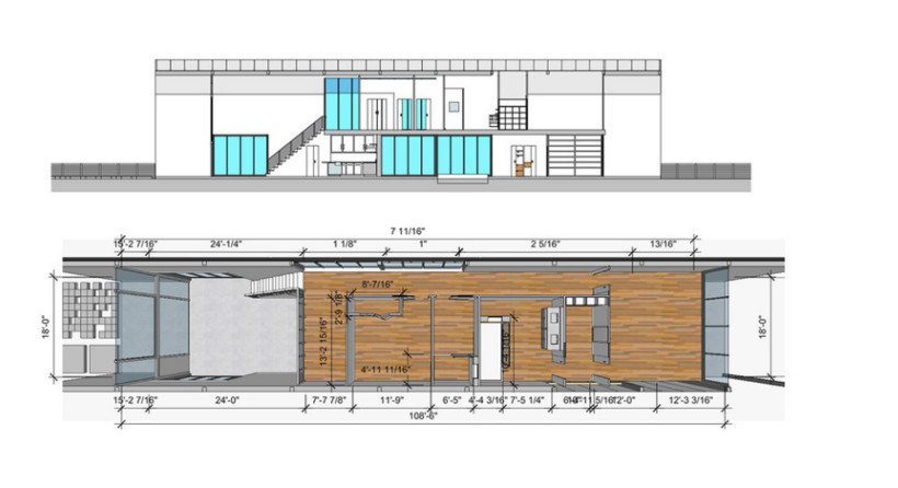
Dokładne wymiary są oczywistym wymogiem dla każdego zestawu rysunków. LayOut wyświetla wymiary tak precyzyjnie, jak model SketchUp: do 0,000001 centymetra. Ta precyzja pozwala również na wymiarowanie różnych widoków SketchUp w celu stworzenia doskonałego przekroju z detalami, takiego jak np. ten…

LayOut: 5+ za współpracę z innymi
Rozumiemy, że nie wszyscy pracują w LayOut. Twoi koledzy mogą korzystać z innych aplikacji CAD, ty również możesz korzystać z innych aplikacji CAD. Wprowadziliśmy więc do LayOut importer DWG/ DXF. Możesz importować pliki od swoich kolegów i posiadane pliki CAD - bloki tytułowe, bloki, strony i geometrię - wszystko w skali mieszczącej się w rozmiarze papieru LayOut.
Niezależnie od tego, jak pracujesz LayOut jest po to aby pomóc Ci tworzyć wspaniałe rysunki.


